Meetings

  • At least once a year or on an as-needed basis
  • Council Chambers, 250 W First Street, Prosper, TX.

Agendas & Minutes

Agendas are available prior to the meetings. Minutes are available following approval.

View Most Recent Agenda & Minutes

Members

  • Town Council
  • Collin County Commissioner, Susan Fletcher
  • Prosper Economic Development Corporation Member, Ray Smith

Overview

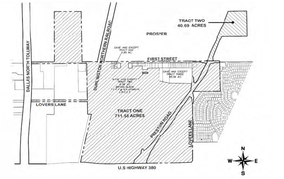
The Tax Increment Reinvestment Zone Board Number 1 (TIRZ 1) facilitates the decisions concerning the area of development at the northeast corner of US 380 and Preston Road.

TIRZ 1 Boundary Map (JPG)